2024-12-13
约合410万人民币 年化收益:%
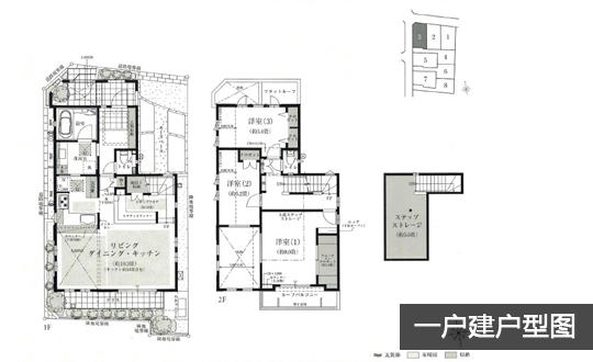
3LDK
101.74
精装
南
2019年10月建
| 价格 | 8724万日元 | 房产类型 | 一户建 |
| 建筑年代 | 2019年10月建 | 建筑结构 | 木造地上2层 |
| 房产面积 | 101.74平米 | 土地面积 | 101.77 |
| 阳台面积 | 平米 | 车库面积 | |
| 总户数 | 所在层 | ||
| 房型 | 3LDK | 朝向 | 南 |
| 租赁情况 | 空置 | 租金 | |
| 管理费 | --- | 修缮费 | --- |
| 建蔽率 | 80% | 容积率 | 200% |
| 用途地域 | 第1种低层住居专用地域 | 土地权利 | 永久产权 |
| 地址 | 东京都杉并区南荻窪2-3-11 | ||
| 交通 | JR中央本线荻窪站徒16分钟 东京地铁丸之内线荻窪站徒步16分钟 | ||
2019年10建,一户建位于东京都杉並区,柔和寂静的南荻洼二丁目,诞生于文化人所爱的闲静的第一种低层住宅专用地区。无论是上班还是上学,交通便利,可以利用2站3条线路,往返市中心方面出行顺利,JR中央线·东京地铁丸之内线(始发)荻窪车站在徒步圈范围内。
东京 杉并区杉並区位于东京23区的西部。杉並区属于治安较好的居住区。区内的久我山、浜田山等地都是有名的高级住宅区。杉並区的空室率为10.3%,与东京都平均11.2%和全日本平均13.5%相比空室率较低,投资风险相对较小。
区内可以利用人气线路的中央线,到国内第一的交通枢纽新宿站很便捷。也可以利用地下铁和私铁,是交通十分便利的地区。JR线和地下铁线路的荻窪站、高円寺站也是人气的投资地区。
此结果仅供参考,实际应缴费以当地为准.
Touwa Stage 帮您拿到最好的贷款产品
适用于个人、法人、工作、投资、自住
| 房产价格 | 8724万日元(410.03万元) |
| 所有权登记税 | 107万日元(5.04万元) |
| 不动产取得税 | 131万日元(6.15万元) |
| 印花税 | 3万日元(0.14万元) |
| 司法书士费 | 19万日元(0.89万元) |
| 地震火灾保险 | 34万日元(1.6万元) |
| 中介手续费 | 288万日元(13.53万元) |
| 实际总费用 | 9306万日元(437.39万元) |

2024-12-13

2024-12-07

2024-12-07

2024-12-05

2024-12-04

2024-11-28

2024-11-28

2024-11-23

2024-11-23

2024-11-23

2024-11-22

2024-05-13

2023-10-27

2023-09-16

2023-09-09
获取更多资讯
提交成功后,我们将在1个工作日内与您联系
我们将及时与您联系,请您保持电话畅通,注意接听陌生来电
输入内容,然后按Enter / Return键提交
您可到微信中直接添加好友
备注:“姓名+地区”
Towa Stage专注日本服务品牌